il y a quand même un risque à inverser les connecteurs, ça peut faire claquer la carte, mieux vaut être sur de ce qu'on fait si erreur machine hs
-----

il y a quand même un risque à inverser les connecteurs, ça peut faire claquer la carte, mieux vaut être sur de ce qu'on fait si erreur machine hs
Maaaagnifiiiiique ! tout ça n'a aucune importance..
re,
ne surtout pas inverser
le contact de porte comporte phase et neutre
ce n'est pas le cas sur le pressostat qui est sur une seule ligne
donc évitez d'inverser les 2 borniers
cordialement
richard 31
la nature nous a doté du meilleur outil "LE CERVEAU" (+ le net)
ok...mais je peux faire quoi maintenant ?
Il semble que ce ne soit pas anormal qu'une patte électrique du connecteur (patte 12) ne soit pas branchée...j'ai trouvé d'autres postes qui l'évoque.
que puis-je faire pour identifier la source de ce problème?
....si j'avais fait des photos....
Re,
désolé je n'ai pas une réponse totale a fournir
par contre je puis dire que sans consulter un schéma
je ne suis pas surpris "chez ce constructeur" d'avoir le contact 12 non connecté
il a eu depuis des lustres l'occasion d'avoir a me méfier de leur type de montage peu conventionnel
mais tout en étant conforme aux normes
style sécu de porte qui ne coupe que l'alimentation moteur et pas le reste (a une certaine période)
j'en passe et de bien meilleurs
bref j'ai surtout voulu vous éviter une inversion qui de façon certaine aurait provoqué un court circuit
après je suis perplexe sur le souci existant
et attends que "mr eurêka" se manifeste pour me manifester a mon tour
cordialement
richard 31
la nature nous a doté du meilleur outil "LE CERVEAU" (+ le net)
merci pour ton retour!!
c'est super frustrant.... tout fonctionne sauf cette arrivée d'eau...
je viens de faire un essorage d'une machine laine qu'on a fait tourner chez des copains, la vidange pareil, tout ça c'est OK
Un copain m'a donné le lien vers le fichier pdf qui décrit la carte (pas exactement la même, mais la position des triac est OK) https://elektrotanya.com/files/forum...15lb06_205.pdf
ça confirme que le TRIAC TC7 commande bien la vanne pour l'eau froide de lavage
il faudrait que j'arrive à mesurer la tension entre A1 et A2 sur ce TC7, si 230V....ça voudrait dire que soit le TRIAC est mort soit le signal de déclenchement n'arrive pas jusqu'à lui....vous sauriez comment je peux tester ce composant pour en avoir le coeur net?
A+
en post 26 vous avez court circuité A1 et A2 de TC7 et ça n'a rien changé, il n'est donc pas la cause du souci
Maaaagnifiiiiique ! tout ça n'a aucune importance..
OK, donc ça veut dire qu'on n'a pas la bonne tension qui arrive sur A1 et A2....je vais fouiller ce ce côté là
A+
je centralise ici toutes les réf que je trouve : https://www.ebay.es/itm/174584185023...=&toolid=10050
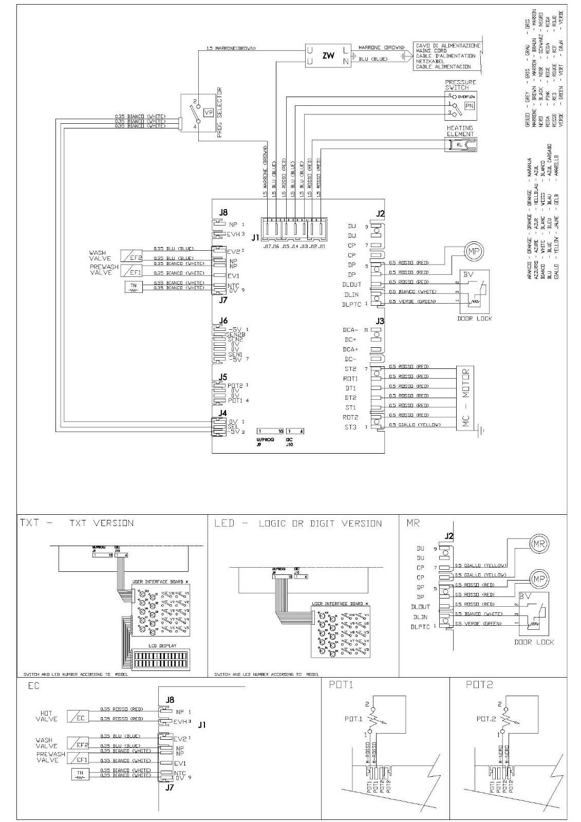
schema de ma carte INVENSYS 1/475540/BC, avec lien vers les capteurs/connecteurs, + couleur des câbles sortant
j'ai recup le schéma ici :![]()
Dernière modification par gerald2545 ; 19/01/2025 à 19h43.
en suivant les fils/connecteurs (je vais essayer de faire une annotation sur le circuit imprimé), j'ai vu que le circuit qui alimente les électrovannes alimentait aussi la pompe de cyclage (en bas de la machine, fils jaunes, cf photo).
J'ai testé la continuité et la résistance aux bornes (connecteur débranché) de cette pompe et il ne se passe rien. On est d'accord que le circuit dans la pompe est sensé être fermé et que je devrais avoir un signal non?
ceci dit, quand j'ai mis de l'eau à la main et que la machine s'est lancée, je voyais bien de l'eau sortir dans le tambour par le tuyau qui vient de cette pompe....
Dernière modification par gerald2545 ; 19/01/2025 à 22h47.
sur le schéma de câblage de la carte, l'arrivée 230v est sur les connexions j16 et j17, normalement une des pistes venant de l'arrivée 230v doit aller sur une des anodes (A1 ou A2) du triac, l'autre coté du 230v doit aller à la bobine d'électrovanne, le deuxième fil de l'électrovanne doit revenir à la deuxième anode
je vais vous faire un bout de schéma, il faudra vérifier que c'est conforme avec un Ohmmètre
Maaaagnifiiiiique ! tout ça n'a aucune importance..
ça devrait ressembler à ça:
Maaaagnifiiiiique ! tout ça n'a aucune importance..
Bsr,
avec la vue côté soudures de la carte, si j'ai bien vu:
cdlt,
JY
M'enfin ?!
Bonsoir,
suite à overdose de tests....et cramage de la carte de puissance pendant mes tests en début d'année, je m'y suis remis après en avoir trouvé une autre sur leboncoin....
désolé de ne pas vous avoir tenus au courant...
tout est remonté :
- toujours le problème de l'afficheur qui s'allume quand je sélectionne un programme puis qui reste rétro éclairé, mais n'affiche plus rien
- j'ai tenté un remplissage de la cuve en sélectionnant le programme adéquat puis en appuyant sur le bouton Départ......l'eau s'est mise à couler dans la cuve à ma grande surprise!!!!
- j'ai fait une vidange de la cuve en sélectionnant le programme adéquat puis en appuyant sur le bouton Départ....la vidange s'est bien faite
mais ça n'a fonctionné qu'une fois.....
maintenant il me fait des trucs bizarres et semble bloqué sur la vidange, quel que soit le programme que je lui donne.....la pompe de vidange faisait un bruit bizarre, je l'ai démontée : une pièce ronde en plastique blanc semblait coincer les pales (je ne sais pas d'où il vient.......)
je crois que je vais définitivement abandonner........mais ça me frustre un peu.....
merci en tout cas pour toute votre aide apportée
Gérald
