Bonjour,
Aligator, tu devrais peut-être construire une maison flottante si l’eau est si proche, tu es haut par rapport à la mer ?
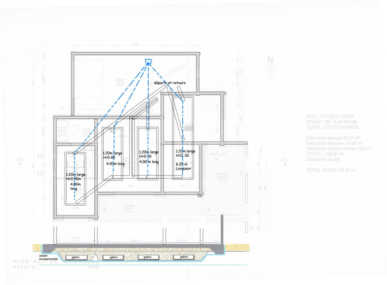
Bon je vais sans doute me faire tirer dessus, mais dans ses conditions quant même particulières, est-ce qu’une petite PAC en géothermie verticale ne serait pas plus adaptée ?
A+
-----


, tu es haut par rapport à la mer ?








pour sa réactivité , rare en France 