Bonjour,
Je suis nouveau sur ce forum, j'espère que je suis au bon endroit pour ma question...
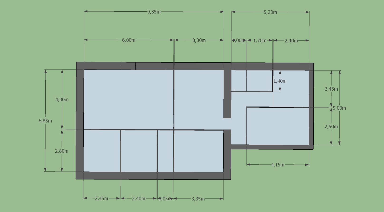
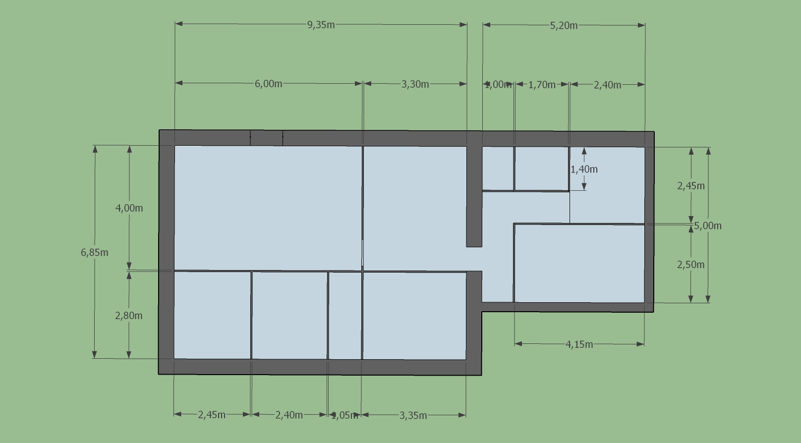
J'ai un projet d'achat de maison ancienne et de grosses fissures sur la chape de la pièce principale me posent question.
Sous cette pièce il y a une cave avec un plafond en voutain. C'est une maison non isolée, murs en pierre de 50 cm d'épaisseur. Non habitée depuis plus de 10 ans.
La fissure traverse la pièce et finit dans la cuisine (sur la photo la cuisine est dans le prolongement de la pièce à vivre, derrière la cloison où il y a la contoise). Dans la cuisine la fissure ne fait plus q'un millimètre de largeur.
La chape fait environ 50m² (elle englobe la pièce principale et la cuisine)
Dans mon entourage j'entends dire que ça ne craint pas car c'est seulement une chape sans joints de dilatation. Et j'entends dire également que ça craint d'acheter cette maison avec une chape dans cet état.
Ces fissures se cantonnent à la dalle et ne vont pas sur les murs porteurs.
Qu'en pensez-vous...?
Si besoin je peux rajouter des photos.
Merci
0193c49eebcc2ef6bf17d9035973b10d.jpeg
-----

